img_3028.jpg

9坪ハウス

セルフビルド・小屋・木造

9坪ハウス組み合わせパターン

9坪ハウスは多くの組み合わせで広がる建築

 

9坪ハウスとは

セルフビルドも視野にれた、ちょうどいい暮らしを提案します。

小さくても豊な住宅をつくろう! 鴨長明の方丈庵のような、「ちょうどいい暮らし」の家。 日本は人口減少や高齢化を迎え、成長から成熟へと大きくシフトしています。成熟社会で私たちが求めている豊かな生活は、多様な価値の上に成り立ってゆきます。その中で「身の丈にあった」「ちょうどいい」暮らしは、住まいの原点です。それが「9坪ハウス」の目指すところです。

9坪ハウスの広がりの図

外へ繋がる9坪ハウス

ほぼ9坪の家

フットプリントが約9坪のこの住宅。 9坪では狭いのでは?と思われるかもしれません。例えば、閉ざされたマンションのようなものであればとても息苦しいでしょう。しかしながら、日本人は昔から外を眺めて暮らしてきました。 この家はそうした庭や外、街へとひろがるアイディアがあります。つまり、9坪+外部環境の無限大の広がりを持っている住宅です。

9坪ハウス増築の図

組み合わせて使う

ライフスタイルに合わせてつなげる

それでも狭いという人には、9坪ハウスを増築して組み合わせることで、さらに豊な空間が出来上がリます。例えば、こどもに恵まれ、大家族になったご家庭や地域のコミュニティを形成出来る連棟建て共同住宅など、9坪では生活出来ないという方には、増築や組み合わせて配置することをおすすめします。

五角形から広がる領域

普段の4つの開放軸からプラス1で生まれる多彩な繋がり。

13尺5寸角の田の字プランから1辺を切り取ることで、5つめの面をつくります。切り取った三角形は軒の下(中間領域)となり、外と内の関係を豊かにします。四角の家が90°で構成されるので、繋がる軸は直行する4面ですが、一部を45°切ることで多彩な広がり、組み合わせが可能です。
 

五角形のダイアグラム

吹抜けと隅切りの関係

内部と外部、更に立体的に広がります。

吹抜け
上下階が繋がることで2階の圧迫感が軽減され、空気の流れが生まれることで環境面でも快適性が期待でます。

隅切り
内と外の関係に内外、外内の段階的な流れが付加され、視線の範囲が広がります。
 

五角形と立体的な繋がり図

連棟にすることで生まれる空間

9坪ハウスを複数組み合わせることでできる半屋外空間

連棟建て半屋外ダイアグラム

 
1棟/9坪
隅切りの部分が内外 を柔らかく繋げます。
2棟/18坪
家を点在若しくは、連結することで 家の間に共用の空間が出来始めます。
3棟/27坪
組合せによって囲まれた外内の空間が生まれ、家の中心が外に向いていきます。
 
9坪ハウス立体的繋がり
 

内外の立体的な繋がり方

2階ロフトとリビングが吹抜けで繋がり、さらに土間から庭を介して家同士が繋がります。
9坪ハウスと大屋根
 

屋根の掛け方

大屋根の下に家が繋がり、内外の関係が曖昧になった軒下空間が広がります。
9坪ハウス平面図

9坪ハウス平面図

 

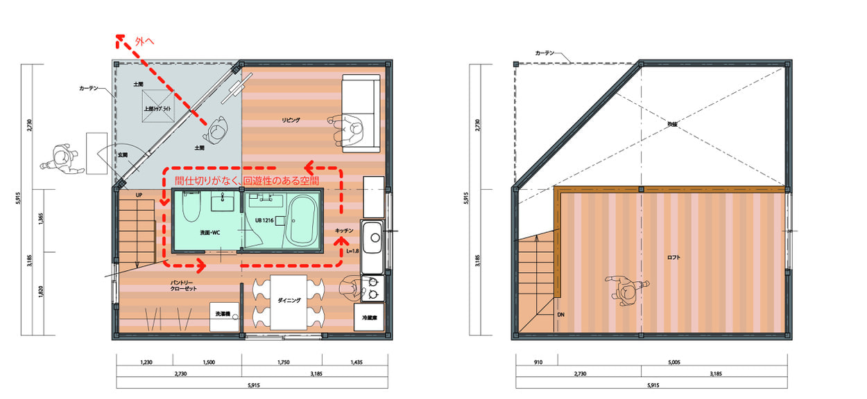
9坪ハウス 間取り

回遊できるワンルーム空間

隅切りによって設けられた使い勝手の良い土間空間は、日本古来からの中間領域の役割を持ち、リビングと庭を緩やかに繋げます。内部は、水回りを中心にそれぞれの場所を緩やかに分けつつ、ワンルームの中に表と奥の空間を自然に生み出します。2階ロフトは、小屋裏のようではありますが、リビングや土間と吹抜けを介して繋がることで、圧迫感のない空間となっています。

9坪ハウス断面図

9坪ハウスは日射をコントロールしています

 

9坪ハウス パッシブな知恵

夏期:軒先に遮熱カーテンを張ることで、直射日光を遮りつつ、室内に涼風が通り抜けます。 冬期:軒先にビニールカーテンを張り、暖かな陽光を土間に蓄熱させ、その輻射熱を利用して室内を暖めます。

9坪ハウス立面図

捨てるモノを使って

素材は根羽村の杉の間伐材などをふんだんに使っています。断熱材も繊維メーカーから出てくる糸グズを集めて壁や天井に充填します。それらの素材の選択は、どこで取れたモノか、どんな過程で出来たモノかが想像できることが重要だと考えます。もっと自分の手で見えなくなる所はシッカリ感じたい方には、どこのご家庭にも、運ばれてくるAmazonのダンボールを使って断熱材を作って見てはどうでしょう。ダンボールを切り刻んだり、貼り合わせたり、今後断熱性能実証してみたいと考えています。 将来はゼロ・エネルギー住宅を視野にアースパートナー協会と根羽村森林組合、裕建築計画は「9坪ハウス」から「9坪スマートハウス」にアップグレードを進めています。

9坪ハウス複数棟組み合わせ図
 

9坪ハウス 複数棟の組み合わせ

隅切りのプランを必要に応じて、複数棟点在若しくは、連結させることで、内部空間はもちろんのこと、内外の関係を近づけ、豊かなライフスタイルのベースが形作られます。

9坪ハウス建て方
 
9坪ハウス建て方
 
9坪ハウス建て方
 
9坪ハウス建て方
 
9坪ハウス建て方
 
9坪ハウス建て方
 
HOME | WORKS | 9坪ハウス