減築の家

鉄骨造+木造 リノベーション 
 

ちょうどいいサイズ

22年の鉄骨ALC3階建て。すでに外壁のシール材の耐用年数を超えて、漏水が始まっていた。 元の家は2階が生活の中心で、1階は座敷と応接間であった。また、ビルディングなデザインはマンションの様に内と外の関係が希淳な関係であった。
施主の父が植木職人と作った庭は、揖斐らしく石を中心に配置され、今ではなかなか作ることができない空間だ。
当時は両蜆と現施主家族の家であったが、 子どもたちの成長と建物メンテナンス時期もあり、ちょうどいいサイズに減築してほしいといった依頼であった。
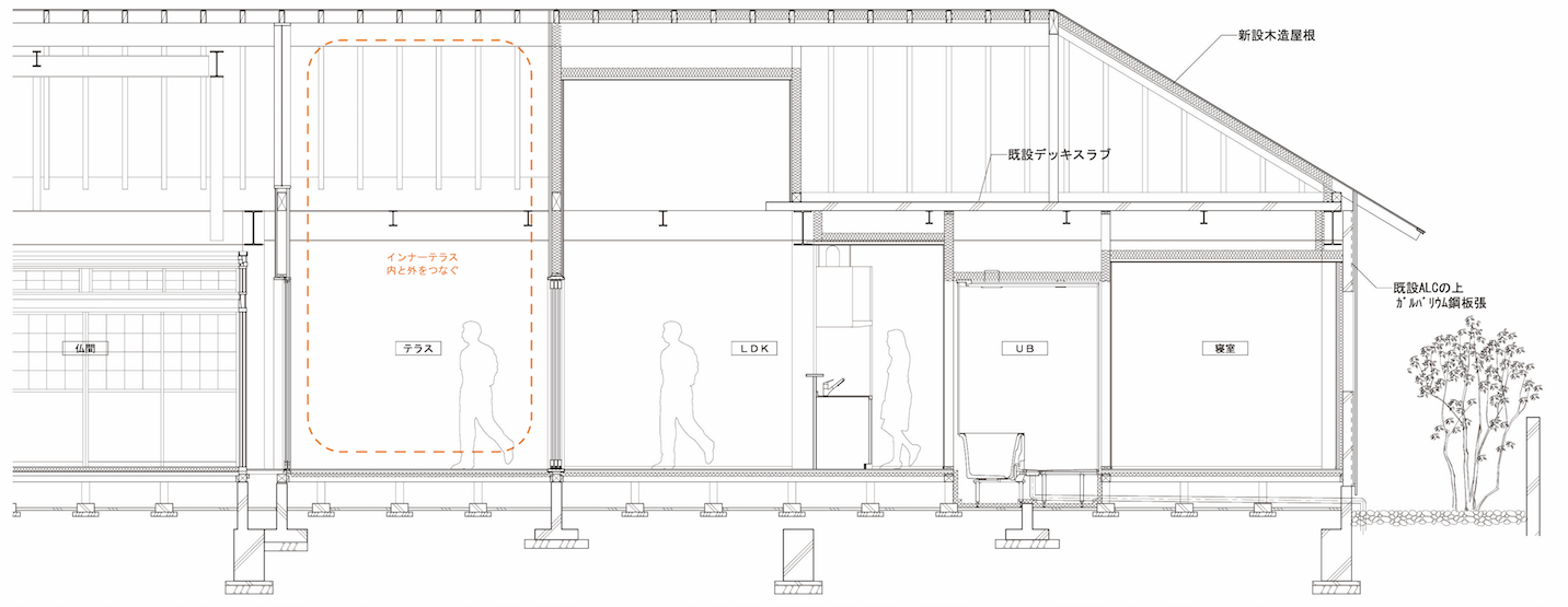
2.3階を撤去し、木造で屋根を置き、外と中、曖昧な中間領域を使った減築の提案である。
鉄骨ラーメン構造の特徴を活かし、 南面は既存の外壁を取り、庭へつながる軒のドとインナーバルコニーを設けた。鉄骨の柱、 梁を極力露出させ、経年変化を感じ、住み手が将来のメンテナス時期を理解出来るようにした。

メンテナンス性の改善  外壁のシールメンテナンスに疲れた施主には、板金で覆うことで改善。さらに平屋とすることで、今後の仮設費が軽減される。鉄骨の構造フレームを露出することで、日々メンテンス時期のチェックが可能となる。
温熱環境の改善  壁面は、内側に断熱材を充填し、ALCの断熱性+グラスウール24k t50。既設の2階デッキスラプを残して小屋裏物置をつくり、遮熱している。
庭との連動性  南側に大きな軒の下空間をつくり、庭とつながる。インナーバルコニーは、アウトドアリビングであり、訪問者のコミュニケーションの場所。よって、玄関を明確に作らない。
面影を残す  仏間である座敷は保存しておく。建て替えを選択しない施主の要望で、面影を残す必要があった。立派な3階建ての家と大きな庭には、それぞれレベルでの生活があったが、独立性が強い構成であった。減築することで、それぞれの場所と生活がつながり、つながる、広がる家にできたと思う。

・減築するための方針
・メンテナンス性の改善
・温熱環境の改善
・庭との連動性
・面影を残す

残された和室

親戚の集まる和室は当時のまま残すことに。 

庭に開く

ALC外壁を撤去し壁面線を軒の内側に後退することで中間領域である軒の下空間を作った。 

3階建の遺構 螺旋階段

以前の2,3階が生活の中心だったころの景色を楽しむための階段 

庭を眺める

時間をかけて出来上がった庭をより近くへ 

軒の下の空間

以前は覆われていた鉄骨の柱と梁の構造フレームを表し、古くからの日本家屋のように構造と空間がリンクする

インナーバルコニー

残された和室とリビングの間に、インナーバルコニーを設け、外部との内部の中間的な空間を挿入。薪ストーブを眺めながら、冬のアウトドアリビング、一年通して外とつながる。